Leave a Message

Thank you for your message. We will be in touch with you shortly.

Explore Our Properties

Property Description

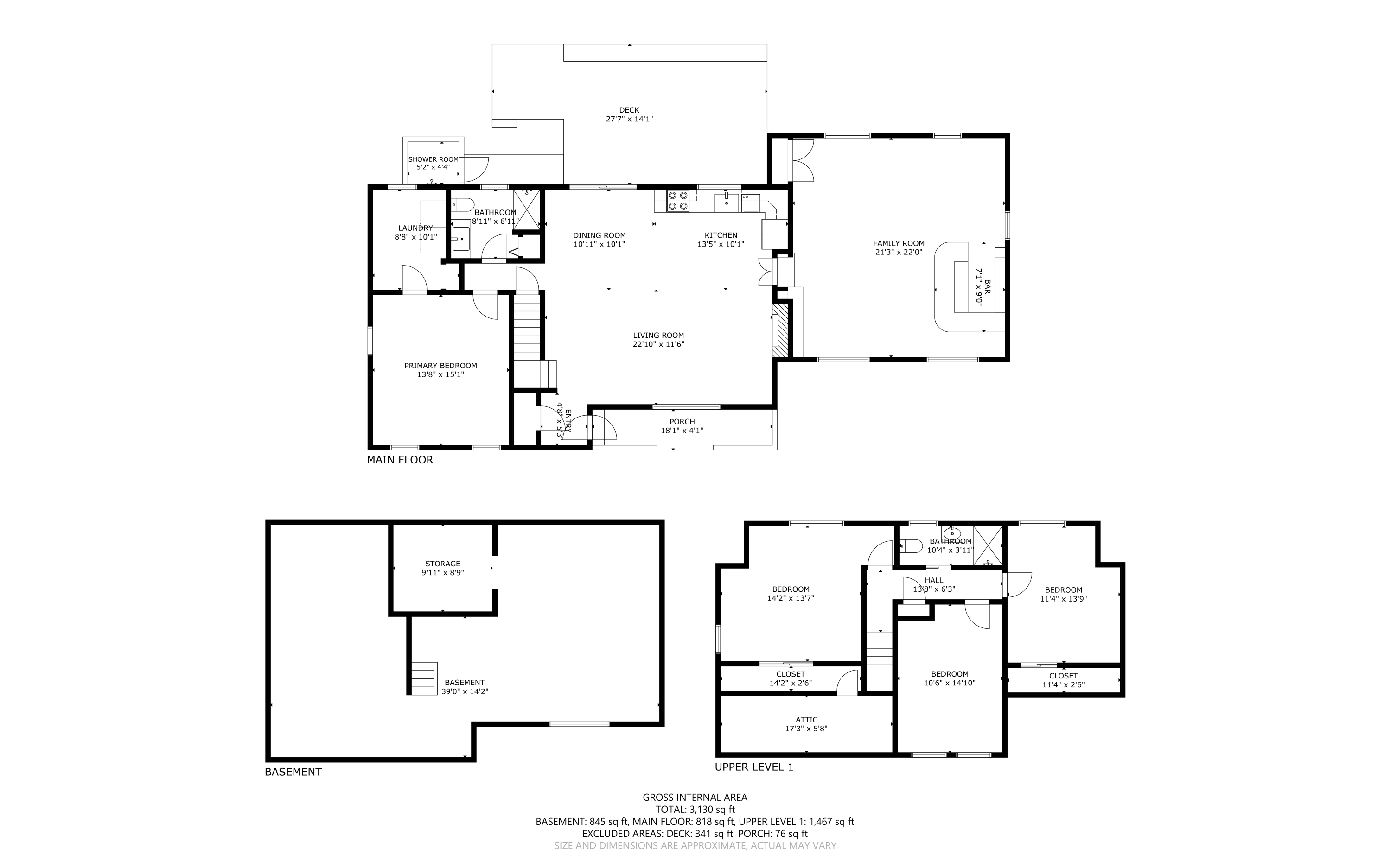
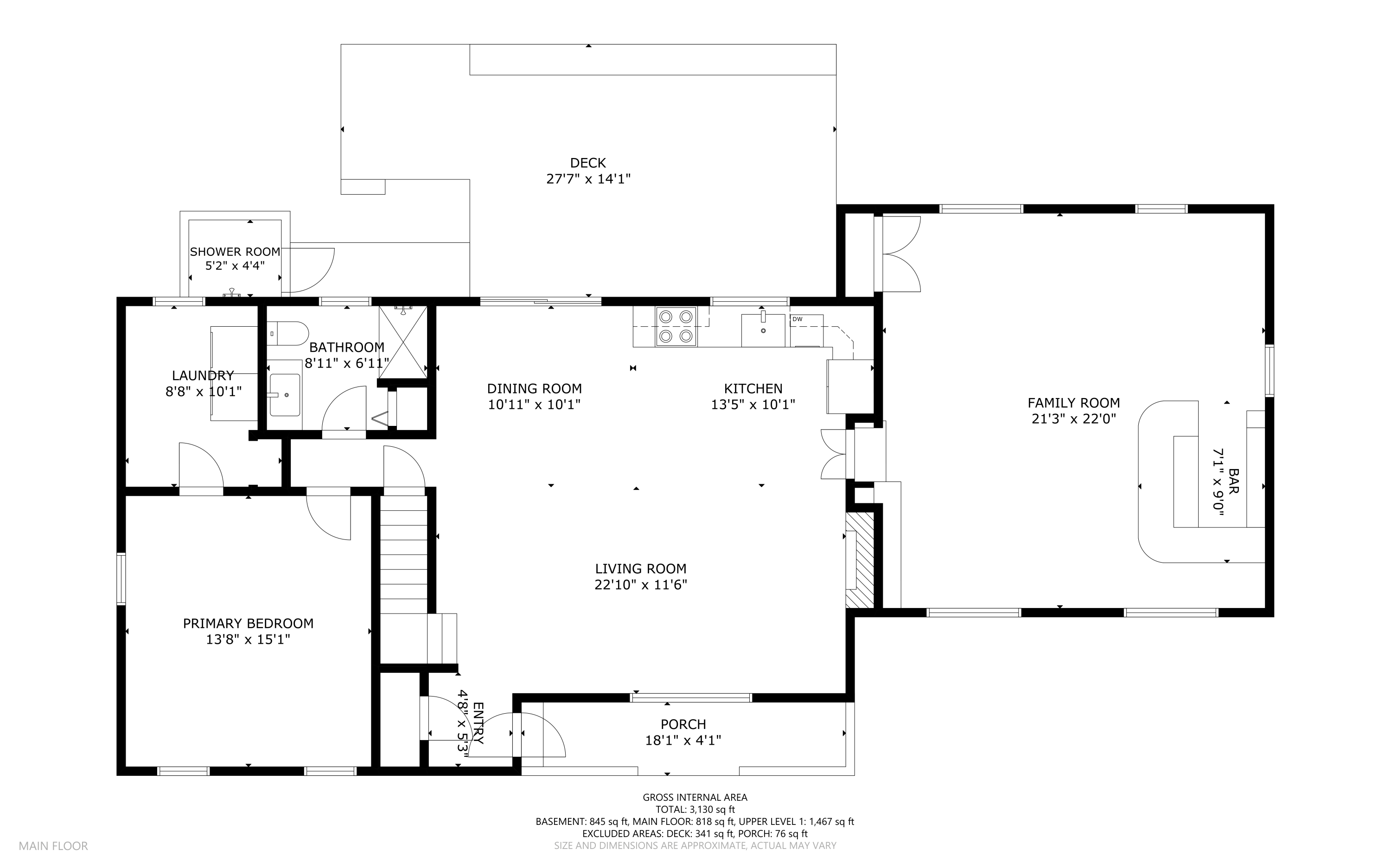
Welcome to this spacious and inviting 4-bedroom home nestled in a desirable East Dennis neighborhood. Set on a generous 0.43-acre lot, this property offers almost 2,200 square feet of thoughtful living space. Enter into an open and bright living, dining and kitchen area, with a natural gas fireplace. Take two steps down to the large great room, perfect for entertaining, featuring a built-in bar, ideal for hosting family and friends. The first-floor primary provides a private retreat complete with a walk-in closet that conveniently houses the laundry. With three additional bedrooms on the 2nd floor, there's plenty of space for guests, or a home office setup. Outside, enjoy the privacy of a fully fenced-in yard with two storage sheds and an outdoor shower--a must-have after days at the beach. Harwood floors throughout, central a/c, natural gas, on-demand water heater and irrigation round out this beautiful home. Located in a quiet neighborhood close to all that East Dennis has to offer, it's a perfect blend of comfort, convenience, and coastal lifestyle.

Overview

Property Status
Sold
Lot Size
0.43 Acres
MLS ID
22502273
Property Type
Residential
Year Built
1986

Features & Amenities

Total Area
2,191 Sq.Ft.
Architecture Styles
Cape Cod
Stories
1
Roof
Asphalt, Pitched
Lot Features
Marina, Public Tennis, Level, South of 6 A
Air Conditioning
Central Air
Laundry Room
Laundry Room, First Floor
Fireplace
Gas
Appliances
Dishwasher, Washer, Refrigerator, Electric Range, Microwave, Electric Dryer, Gas Water Heater
Other Interior Features
Recessed Lighting
Sewer
Septic Tank, Private Sewer
Substructure
Concrete Perimeter
Other Exterior Features
Outdoor Shower, Garden
School District
Dennis-Yarmouth
Sales Price
$918,150
Real Estate Tax
$3,341/yr
Zoning
RL

Downloads

53 Settlers Lane

Schedule a Tour

We would love to help you see this beautiful home! As a full-service brokerage, we can help you tour. Please submit an offer, and answer questions about the buying process.

Enter a valid email

Thank you

for your interest in 53 Settlers Lane, East Dennis, MA 02641

back to page

I'm Interested In

53 Settlers Lane

or
  • CallJeffrey Cusack

    License #9036186

    (508) 725-8548
  • 53 Settlers Lane
    Navigate

    Follow Us On Instagram