Leave a Message

Thank you for your message. We will be in touch with you shortly.

Explore Our Properties

There is no property location added.

There is no property location added.

Property Description

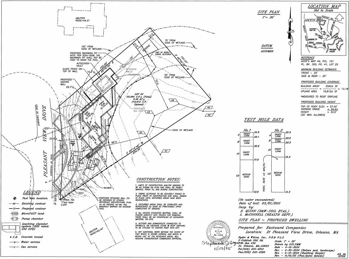
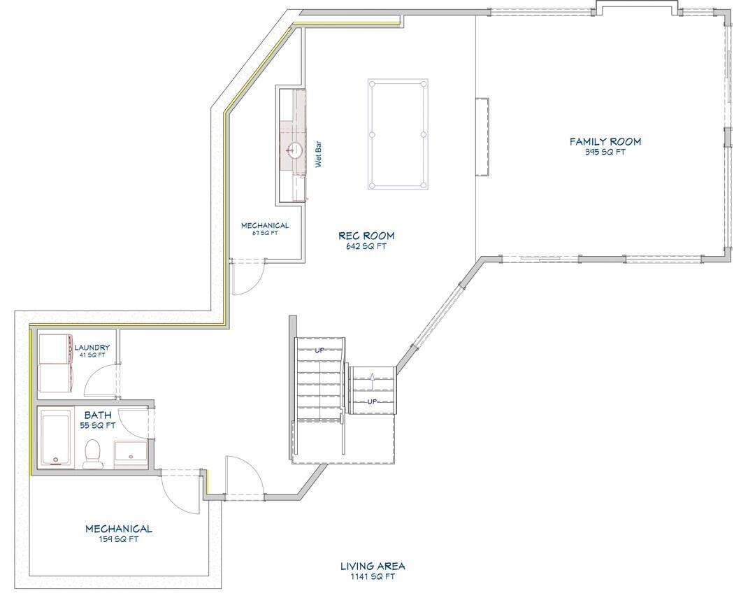
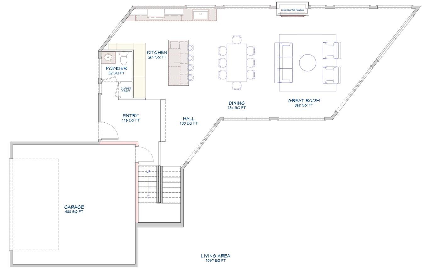
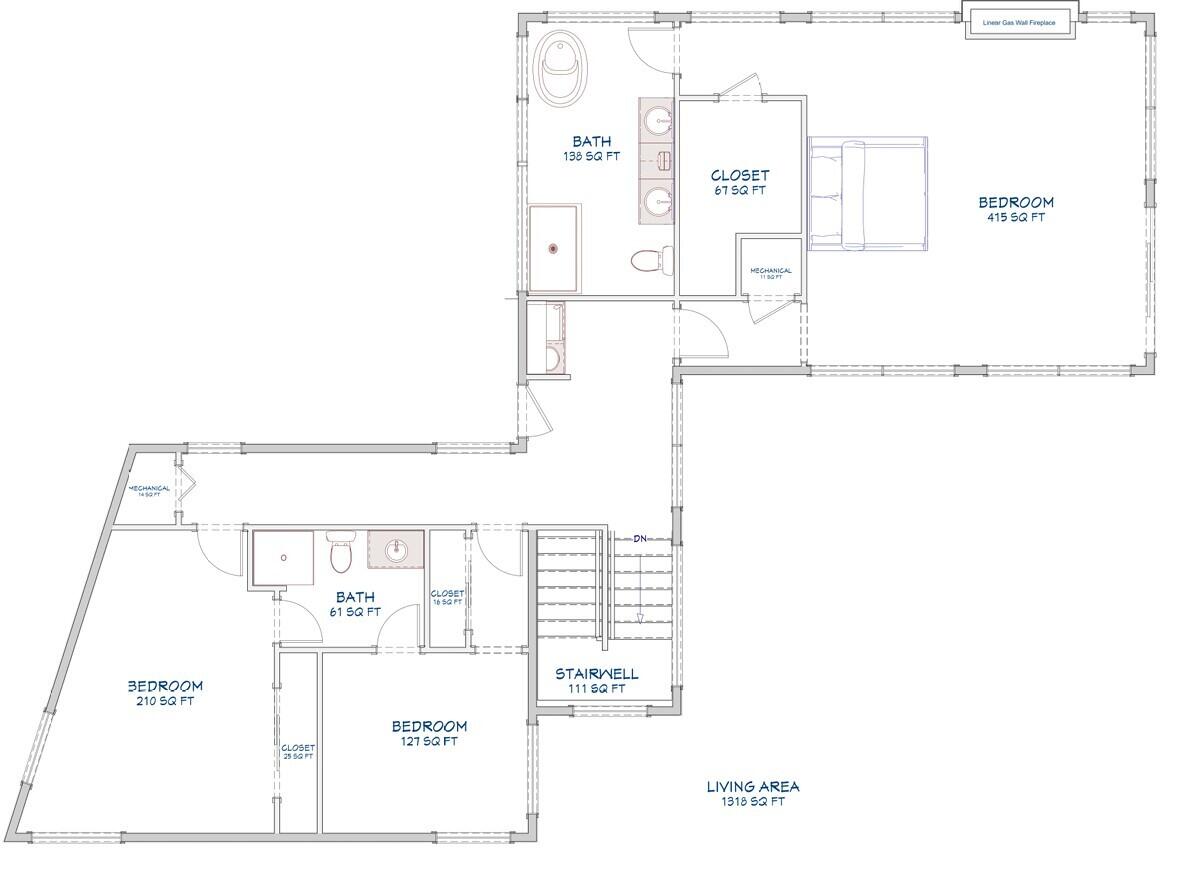
This stunning new contemporary home by Eastward Companies is nearing completion. Designed to embrace the unique topography and natural setting, it overlooks a flourishing natural hollow. The three levels of living space offer immersive views of the surrounding native flora, further enhanced by a comprehensive natural landscape plan. Walls of south-facing windows and multiple decks offer quiet spaces and tranquil vistas. The great room encompasses the first floor, ideal for gatherings. The natural wood chef's kitchen is a striking complement to the sleek lines and kerfed windows of the living and dining space. Upstairs are two guest bedrooms and a stylish primary suite with fireplace and private deck. The fixtures, finishes and workmanship throughout are superb. The lower walkout level is for media, games, and access to the inground plunge pool with its private granite patio, outdoor shower and gas fire pit. Watch the stars or the amazing variety of birds and wildlife that visit. Coupled with a superb Briar Springs Hills address, an area loved by walkers for generations, this property presents the ultimate Cape retreat or year-round home.

Overview

Property Status
For Sale
Lot Size
0.48 Acres
MLS ID
22601200
Property Type
Residential
Year Built
2026

Features & Amenities

Total Area
3,546 Sq.Ft.
Neighborhood
Orleans
Architecture Styles
Contemporary
Stories
3
Garage Spaces
2.0
Pool
Pool Cover, In Ground, Heated, Gunite
Roof
Flat, Other
Lot Features
Cul-De-Sac
Air Conditioning
Central Air
Laundry Room
In Basement
Fireplace
Gas
Appliances
Dishwasher, Wine Cooler, Wall/Oven Cook Top, Range Hood, Refrigerator, Microwave, Electric Water Heater
Sewer
Septic Tank
Substructure
Concrete Perimeter, Poured
HOA Amenities
Road Maintenance
Other Exterior Features
Outdoor Shower, Garden
School District
Nauset
Sales Price
$4,250,000
Real Estate Tax
$3,010/yr
Zoning
R

Downloads

21 Pleasant View Drive

Schedule a Tour

We would love to help you see this beautiful home! As a full-service brokerage, we can help you tour. Please submit an offer, and answer questions about the buying process.

Thank you

for your interest in

I'm Interested In

21 Pleasant View Drive

or
  • CallJeffrey Cusack

    License #9036186

    (508) 725-8548
  • Orleans

    Explore Orleans

    read more

    Mortgage Calculator

    Estimate your monthly mortgage payment, including the principal and interest, property taxes, and HOA. Adjust the values to generate a more accurate rate.
    $0,000 Your Payment 20 15 65
    $0,000 Your Payment

    pretitle

    Featured Properties

    • 63 kescayogansett Road For Sale

      $4,799,999

      63 kescayogansett Road, Orleans, MA 02653

      • 5 Beds
      • 8 Baths
      • 5,700 Sq.Ft.
    • 43 Old Duck Hole Road Pending

      $2,395,000

      43 Old Duck Hole Road, Orleans, MA 02653

      • 2 Beds
      • 3 Baths
      • 1,728 Sq.Ft.
    • 47 Daleys Terrace Pending

      $1,899,000

      47 Daleys Terrace, Orleans, MA 02653

      • 4 Beds
      • 4 Baths
      • 2,973 Sq.Ft.
    • 96 Briar Spring Road Pending

      $850,000

      96 Briar Spring Road, Orleans, MA 02653

    View All

    Follow Us On Instagram